English
Nieuw in verkoop:Wimbledonpark 187, 1185 XJ Amstelveen - Foto
Nieuw in verkoop
+39

Wimbledonpark 187 1185 XJ Amstelveen € 735.000,- k.k.

  • Appartement
  • 4 kamers
  • 3 slaapkamers
  • 1 badkamer
  • Bouwjaar 2001
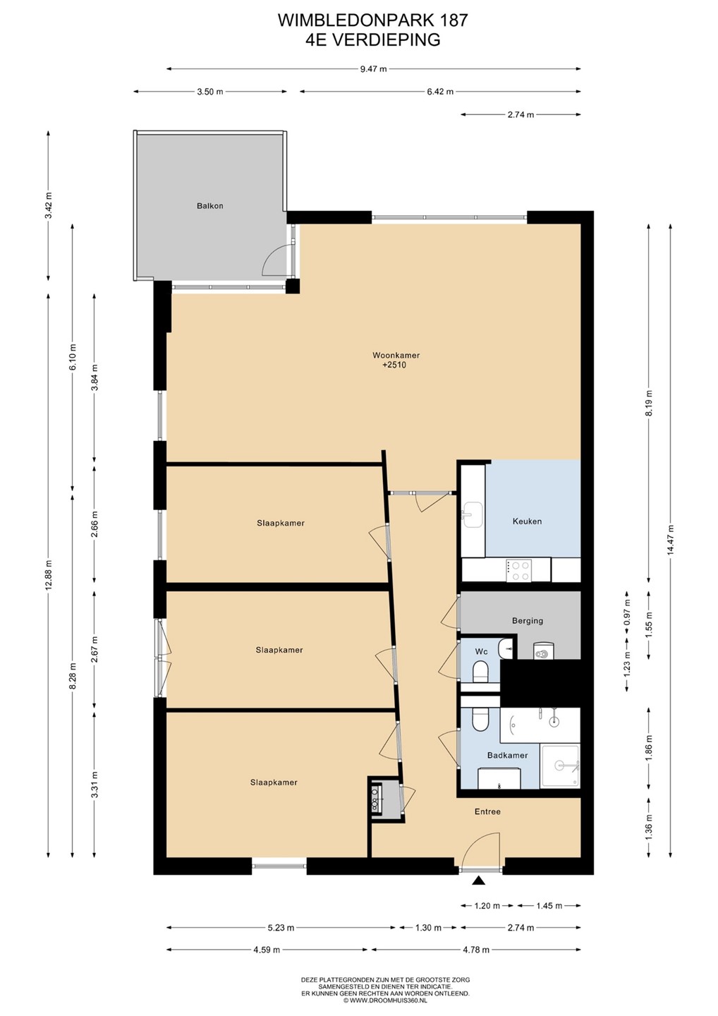
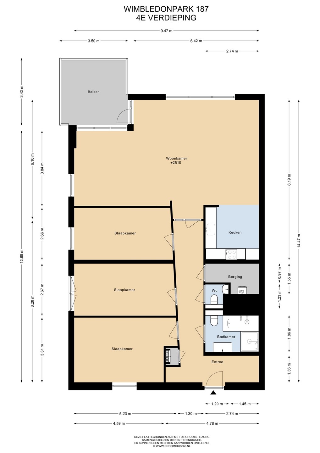
  • 131 m² gebruiksoppervlakte
  • A Energielabel A
Ruim en Comfortabel Hoekappartement met allure in het hart van Amstelveen

Beschrijving

Ruim en Comfortabel Hoekappartement met allure in het hart van Amstelveen

*** English translation below ***

Pakken we jouw woonwensen erbij? Mooi, want Wimbledonpark 187 in Amstelveen vinkt ze stuk voor stuk af! Dit lichte en royale hoekappartement, gelegen in het gewilde Keizer Karelpark-West, is klaar om je te verrassen. Stap binnen en laat je inspireren door de ruimte, het uitzicht en het gevoel van thuiskomen. Hier combineer je het comfort van een luxe complex met het gemak van alle voorzieningen om de hoek.

**Wonen met uitzicht**

Wat meteen opvalt zodra je binnenloopt, is het panoramische uitzicht over de sportvelden. Een levendig schouwspel waar je zomer én winter van geniet – en dat allemaal vanaf je eigen beschutte terras op het zuiden. Heerlijk trouwens, zo’n plekje zon op een frisse ochtend of juist ’s avonds met een goed glas wijn. Dit is buiten wonen, zonder je appartement uit te hoeven!

**Ruimte voor iedereen**

Met een fors woonoppervlak van 131m2 is dit appartement een zeldzaamheid. De ruime living geeft je alle vrijheid om jouw ideale zit- en eethoek te creëren. De open keuken vormt het kloppend hart: dé plek om samen te koken, te borrelen of na te tafelen met vrienden. Dankzij de slimme indeling en grote raampartijen valt het licht overal fraai naar binnen.

Niet één, niet twee, maar drie volwaardige slaapkamers bieden genoeg plek voor een gezin met kinderen, logees of hobby’s. Werk je veel thuis? Fijn, zo’n extra kamer die dienst doet als kantoor of inspirerende werkplek!

**Luxe, comfort en veiligheid**

Comfort is vanzelfsprekend in dit gebouw: denk aan de lift die je met twee tassen boodschappen moeiteloos naar boven brengt. Je auto parkeer je veilig en droog op je eigen plek onder het complex. Net even meer ruimte nodig? Er is zelfs een aparte garagebox te koop (voor € 50.000,-), ideaal voor je tweede auto, fietsen of al je seizoensspullen.

**Slim en duurzaam wonen**

Gebouwd in 2001 en voorzien van energielabel A, dus helemaal klaar voor een duurzame toekomst. Dat betekent betrouwbare isolatie, energiezuinige installaties en lage energielasten. Zowel het pand als het appartement zelf stralen verzorging uit; hier hoef je niet groots te klussen.

**Ligging: alles bij de hand**

Wat locatie betreft scoort dit appartement 10 punten. Midden in de geliefde wijk Keizer Karelpark-West, dichtbij Stadshart Amstelveen met eigentijdse winkels, horeca en cultuur. Ook het Amsterdamse Bos ligt praktisch om de hoek; perfect voor een rondje hardlopen of een middagje zonnen aan het water. (Internationale) scholen, diverse sportclubs en perfecte uitvalswegen naar zowel Amsterdam als Schiphol maken deze plek aantrekkelijk voor gezinnen, expats en grootstedelijke levensgenieters.

**Samengevat**

- Riant hoekappartement van 131 m2 met prachtig uitzicht
- Drie slaapkamers, riante woonkamer en open keuken
- Beschut en zonnig terras op het zuiden
- Parkeerplaats in parkeerkelder, garagebox separaat te koop voor € 50.000,-
- Bouwjaar 2001, energielabel A
- Centraal in Amstelveen, nabij het Stadshart, Amsterdamse bos, (internationale) scholen en uitvalswegen
- Servicekosten VVE: Woning met berging € 296,68 per maand, Parkeerplaats € 31,24 per maand, Garagebox € 32,78 per maand, totaal € 360,70

Zie jij jezelf hier al wonen? Kom ervaren hoe het voelt om ruimte, uitzicht en stadse luxe te combineren in deze groene toplocatie. Bel snel voor een bezichtiging – wie weet is Wimbledonpark 187 straks jouw nieuwe thuis!

Disclaimer:
Deze informatie is door ons met de nodige zorgvuldigheid samengesteld. Onzerzijds wordt echter geen enkele aansprakelijkheid aanvaard voor enige onvolledigheid, onjuistheid of anderszins, dan wel de gevolgen daarvan en wijzen de koper nadrukkelijk op zijn wettelijke onderzoek plicht.
Alle opgegeven maten zijn ingemeten conform NEN 2580 en zijn indicatief.
Alle informatie in deze advertentie is met zorg samengesteld. Echter, aan de verstrekte informatie kunnen geen rechten worden ontleend.

+++++++++

Spacious and comfortable corner apartment with style in the heart of Amstelveen

*** English translation below ***

Let's take a look at your housing requirements. Great, because Wimbledonpark 187 in Amstelveen ticks all the boxes! This bright and spacious corner apartment, located in the sought-after Keizer Karelpark-West, is ready to surprise you. Step inside and be inspired by the space, the view, and the feeling of coming home. Here, you can combine the comfort of a luxury complex with the convenience of all amenities around the corner.

**Living with a view**

What immediately strikes you as soon as you walk in is the panoramic view over the sports fields. A lively spectacle that you can enjoy in both summer and winter – all from your own sheltered south-facing terrace. It's wonderful, by the way, to have a spot of sun on a crisp morning or in the evening with a good glass of wine. This is outdoor living without having to leave your apartment!

**Space for everyone**

With a generous living area of 131m2, this apartment is a rarity. The spacious living room gives you all the freedom you need to create your ideal sitting and dining area. The open kitchen is the beating heart of the home: the perfect place to cook, have drinks, or linger over dinner with friends. Thanks to the smart layout and large windows, light floods in beautifully throughout.

Not one, not two, but three full bedrooms offer enough space for a family with children, guests, or hobbies. Do you work from home a lot? Great, an extra room that serves as an office or inspiring workspace!

**Luxury, comfort, and safety**

Comfort is a given in this building: think of the elevator that effortlessly takes you upstairs with two bags of groceries. You can park your car safely and dry in your own spot under the complex. Need a little more space? There is even a separate garage box for sale (for €50,000), ideal for your second car, bicycles, or all your seasonal items.

**Smart and sustainable living**

Built in 2001 and equipped with energy label A, so completely ready for a sustainable future. That means reliable insulation, energy-efficient installations, and low energy costs. Both the building and the apartment itself exude care; no major renovations are needed here.

**Location: everything at your fingertips**

In terms of location, this apartment scores 10 out of 10. It is located in the heart of the popular Keizer Karelpark-West neighborhood, close to Stadshart Amstelveen with its contemporary shops, restaurants, and cultural offerings. The Amsterdamse Bos is also practically around the corner, perfect for a run or an afternoon of sunbathing by the water. (International) schools, various sports clubs, and perfect access roads to both Amsterdam and Schiphol make this place attractive for families, expats, and metropolitan bon vivants.

**In summary**

- Spacious corner apartment of 131 m2 with beautiful views
- Three bedrooms, spacious living room, and open kitchen
- Sheltered and sunny south-facing terrace
- Parking space in parking garage, garage box separately for sale for €50,000
- Built in 2001, energy label A
- Centrally located in Amstelveen, near the Stadshart, Amsterdamse Bos, (international) schools, and major roads
- Service costs VVE: Apartment with storage room €296.68 per month, parking space €31.24 per month, garage box €32.78 per month, total €360.70

Can you already see yourself living here? Come and experience what it feels like to combine space, views, and urban luxury in this green prime location. Call us soon for a viewing—who knows, Wimbledonpark 187 could soon be your new home!

Disclaimer:
This information has been compiled by us with the necessary care. However, we accept no liability for any incompleteness, inaccuracy, or otherwise, or the consequences thereof, and we expressly refer the buyer to his legal duty to investigate.
All specified sizes have been measured in accordance with NEN 2580 and are indicative.
All information in this advertisement has been compiled with care. However, no rights can be derived from the information provided.

Kaart

Kenmerken

Overdracht

Referentienummer
77
Vraagprijs
€ 735.000,- k.k.
Servicekosten
€ 360,70
Gas
€ 92,-
Water
€ 20,-
Status
Nieuw in verkoop
Aanvaarding
In overleg
Aangeboden sinds
Donderdag 12 maart 2026

Bouw

Type object
Appartement, portiekflat
Woonlaag
4e woonlaag
Soort bouw
Bestaande bouw
Bouwperiode
2001
Dakbedekking
Bitumen
Type dak
Platdak
Isolatievormen
HR-glas
Volledig geïsoleerd

Oppervlaktes en inhoud

Woonoppervlakte
131 m²
Inhoud
409 m³
Oppervlakte externe bergruimte
24,8 m²
Oppervlakte gebouwgebonden buitenruimte
12 m²

Indeling

Aantal bouwlagen
1
Aantal kamers
4 (waarvan 3 slaapkamers)
Aantal badkamers
1 (en 1 apart toilet)

Locatie

Ligging
Aan rustige weg

Energieverbruik

Energielabel
A

CV ketel

CV ketel
Intergas HRE 28/24 A Kompakt
Warmtebron
Gas
Bouwjaar
2023
Combiketel
Ja
Eigendom
Eigendom

Uitrusting

Aantal parkeerplaatsen
1
Warm water
CV-ketel
Verwarmingssysteem
Centrale verwarming
Ventilatie methode
Mechanische ventilatie
Parkeergelegenheid
Garagebox
Parkeerplaats
Heeft een alarm
Ja
Heeft een lift
Ja
Heeft een garage
Ja
Heeft ventilatie
Ja

Vereniging van Eigenaren

Ingeschreven bij de KvK
Ja
Jaarlijkse vergadering
Ja
Periodieke bijdrage
Ja
Reservefonds
Ja
Meer jaren onderhoudsplan
Ja
Onderhoudsverwachting
Ja
Opstal verzekering
Ja

Kadastrale gegevens

Kadastrale aanduiding
Amstelveen M 6039
Perceeloppervlakte
730 m²
Omvang
Appartementsrecht of complex
Eigendomsituatie
Eigen grond
Indexnummer
A-35

Media

Video

Virtuele tour

Plattegronden